q: 135721
Compartilhar:
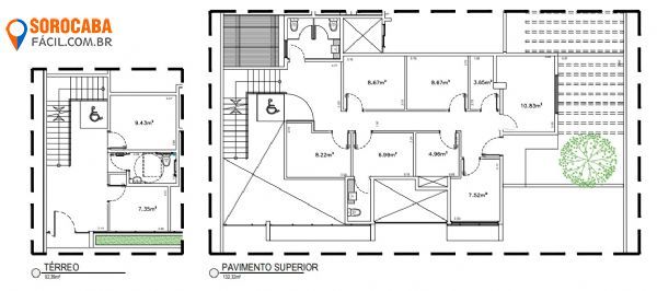
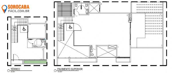
Loja comercial Edificio Kennedy 180. OTIMA LOCALIZAÇÃO entrega em setembro desse ano (2023) . A unidade comercial tem 249,58 m² - sendo 139,07 m² construída + 60,11 m² descoberta (terraço) + 50,40 m² descoberta (vagas de garagem). Ideal para cliinicas, cafeterias, mini mercados, etc.
Código do Imóvel: 135721
Tipo de Negócio: Vende-se
Cidade: Sorocaba
Bairro: Jd. Paulistano
Cozinhas: 1
Garagem: Não Possui
Valor: R$ 1.670.000,00
Área do Terreno: 2000 m²
Área Construida: 249 m²
Ambientes: 2
Banheiros: 2
Piscinas: Não Possui
Pagamento: PROPOSTAS A COMBINAR - A VISTA OU PARCELADO
Varanda
Portão Automático
Jardim
Sobre a Dogus Comunicação | Política de Privacidade | Receba Novidades | Acesse pelo Celular
Melhor Visualizado em 1200x900 - © Copyright 2007 - 2026, Dogus Comunicação. Todos os direitos reservados.

Atendimento via WhatsApp
Entre em contato